Chalupa Tichá Říčka
autentická atmosféra JIZERSKÝCH HOR
zavedená chalupa se stálou klientelou
výborný technický stav bez dalších investic
vhodný jako investice nebo vlastní bydlení
autentická atmosféra JIZERSKÝCH HOR
zavedená chalupa se stálou klientelou
výborný technický stav bez dalších investic
vhodný jako investice nebo vlastní bydlení
Mám pro vás místo, které nabízí tu pravou atmosféru Jizerských hor. Bez davů turistů, bez přeplněné dopravy, ale naopak uprostřed lesů a přímo u říčky
Místo, kde se čas zpomalí, život uklidní a příroda přiblíží
Vítejte na chalupě TICHÁ ŘÍČKA

STRUČNĚ NA ÚVOD:
Lokalita:
Karlov je krásným místem uprostřed Jizerských hor, které nabídne primárně klid a atmosféru uprostřed lesů.
Zároveň je výborným výchozím bodem pro zimní i letní turistiku a zážitky v horách. Do lyžařských středisek Severák nebo Bedřichov dojedete během pár minut a na Tanvaldský Špičák je to 15 minut. Běžkařská stopa začíná téměř za domem. V létě tu najdete nespočet tras pro pěší i cyklo výlety. Nudit se tu nebudete.
Do sousedního Jablonce je to 15 minut a do Liberce 25 minut. O občanskou vybavenost, kulturu a další vyžití tak v okolí není nouze.
Přímo v okolí chalupy je několik málo obytných domů, které jsou ve velmi dobrém stavu a majitelé se o ně výborně starají. Sousedské vztahy jsou tu přátelské a vstřícné. Jeden dům přes potok před lety vyhořel a nyní se čeká na jeho nový osud. Celá mikrolokalita má velmi příjemnou atmosféru díky lesům i říčce, která neustále dotváří zvukovou kulisu.
Historie:
Před 15 lety současní majitelé penizon koupili v původním neutěšeném stavu, kdy sloužil jako podniková chalupa pro Vinohradskou nemocnici. A pustili se do kompletní rekonstrukce, aby domu navrátili jeho původní krásu.
Současnost:
Chalupa (penzion) má zavedenou dlouholetou klientelu, která se pravidelně a spokojeně vrací. Aktuální výnos se pohybuje okolo 1.000.000 Kč za rok a to bez podpůrných reklamních aktivit. Jde pouze o pravidelné hosty.
S dobře zvládnutým marketingem a cenovou politikou je tu předpoklad navýšení výnosu o 20 - 40% ročně.
Majitelé v případě zájmu budoucímu majiteli předají kompletně fungující systém včetně rezervací i webu, a můžete dál pokračovat v chodu podnikání.
Popis nemovitosti:
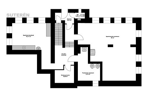
Vstup do suterénu je přímo ze zahrady, což je zejména v letních měsíčích velmi praktické. Suterén je hlavním místem pro setkávání všech hostů. Společenská místnost je vybavena barovým pultem i krbovou vložkou, která se stará o atmosféru i teplo, to zajišťuje také podlahové vytápění. Společná kuchyň je plnohodnotně vybavena varnými deskami, troubou, myčkou nádobí, tak ať tu pohodlně obsloužíte všechny hosty. Na tomto patře jsou také toalety a technická místnost domu (elektrokotel, akumulační nádrž na vytápění, zázemí fotovoltaické elektrárny).
Přízemí je přístupné hlavním vstupem přímo z komunikace. Na patře jsou 4 samostatné pokoje, každý má svou vlastní koupelnu s vanou a WC. Vany jsou zvolené z praktického hlediska na údržbu. Apartmány jsou koncipovány tak, aby nabídly dostatečnou míru pohodlí a praktičnosti. U vstupu je k využití lyžárna a na chodbě je malá a útulná sauna i se sprchou.
V prvním patře je rodinný apartmán, který má jako jediný vlastní kuchyňský kout. A pak 2 menší pokoje, které mají opět vlastní koupelny.
V podkroví jsou 2 pokoje, které díky zkoseným stropům nabídnou méně prostoru, ale o to jsou útulnější. Jedná se o pokoje nejoblíbenější zejména pro děti. Koupelny k těmto pokojům jsou o patro níže. Ty jediné je nemají přímo v pokojích.
Technický stav:
Celý objekt je majiteli udržován v perfektním a funkčním stavu, kdy není třeba žádných dalších investic nebo oprav.
Primárně dům sloužil jako penzion, proto je dbáno na to, aby zařízení bylo primárně účelné a odolné. Nečekejte poslední designové výstřelky. Tohle je poctivý horský penzion.
Zahrada:
Před domem je parkovišě pro cca 8 osobních automobilů.
Pod domem přímo u Tiché říčky je zahrada, kterou dělí právě říčka. Přímo u domu je prostor pro posezení a hry, přes vodu je útulné ohniště pro večerní romantiku u táboráku.
Na pozemku jsou 2 další stavby: garáž přímo u domu a pak zahradní dům, kde je v podkroví kolárna a úložné prostory a v přízemí pingpongová herna a zázemí ČOV.
Závěrem:
Penzion Tichá Říčka je kus života současných majitelů v tom nejlepším slova smyslu. Na každém kroku je jasné, že tady se na ničem nešetřilo, u všeho se používala hlava a majitelům na domě opravdu záleželo.
Máte tak příležitost pořídit si nemovitost, kde můžete dál podnikat v oblasti ubytování nebo spojit vlastní bydlení s občasným ubytováním hostů a nebo si zkrátka pořídit opravdu velkorysou chalupu.
Přijeďte za mnou sem, do Karlova, a já vás společně s majiteli rád domem provedu a seznámím s každým jeho koutem.
________________________________________________________________
o ceně vás rád informuji telefonicky
Zajímá-li vás cokoli dalšího neváhejte využít kontaktní formulář níže a ozvat se mi. Samozřejmě můžete zvolit i klasické cesty - zavolejte, pošlete e-mail, napište přes WhatsApp nebo Messenger. Záleží, co je vám pohodlnější.
Já se na vás budu těšit osobně při prohlídkách nemovitosti.
Samozřejmostí je zajištění konzultace financování koupě nemovitosti.

Zdeněk Milfajt - MILFAJT REALITY s.r.o.
606 786 700 / [email protected]
Novinky a zajímavosti z mé práce a realitního oboru můžete sledovat na sociálních sítích:
Z důvodu absence PENB je nemovitost zařazena do kategorie G.
Prodávající si vyhrazuje právo vybrat kupujícího na základě vlatních kritérií
Výměry uvedené v nabídce jsou pouze orientační.
Zakladatel a majitel realitní kanceláře. Na trhu realit působí od roku 2008 jako realitní makléř, od roku 2020 také jako investor.